The automatic monitoring system for soil erosion is a comprehensive platform that integrates real-time collection of multiple parameters, intelligent analysis, risk warning, and governance evaluation. It breaks through the limitations of traditional single device monitoring and connects monitoring equipment in key areas such as weirs, slopes, and channels through IoT technology, forming a monitoring network covering the entire process of "rainfall runoff erosion transport"
1. Product Introduction
In the monitoring work of water and soil loss in the runoff field and small watersheds, traditional manual measurement of flow and sediment data has the problems of large workload, low efficiency, high labor cost and large data errors. The automatic water and soil loss monitoring system has successfully realized the innovation of the traditional manual monitoring mode after years of technical research and a large number of field tests.
This system consists of a data acquisition main control machine, a sediment measurement sensor, a明channel flow sensor and a rainfall sensor. Among them, the components of the open channel flow sensor can automatically measure the runoff flow, and through the controller, the total runoff and instantaneous runoff data in different time periods are accurately calculated; The sediment measurement sensor, based on the change characteristics of the runoff, measures the sediment content of the runoff at the vertical distribution measuring hole of the runoff, and the rainfall sensor is responsible for accurately obtaining the cumulative rainfall data. The sensors work together, and the data collected is of key value to the analysis of water and soil loss.
The system uploads the sediment content, runoff flow and cumulative rainfall data collected by each sensor to the cloud platform in real time, so that users can access, analyze and manage data anytime and anywhere, and provide scientific and accurate data support for water and soil conservation decision-making.
The working process of the sediment content sensor: The surface water enters the open channel or the Parshall flume through the water guide slot and obtains the instantaneous runoff data after passing through the open channel flow meter, and calculates the total runoff in a unit of time, and the water guide pipe collects the surface water and sends it to the main water tank. When the main water tank has enough capacity of the surface water to be tested for detection, the system starts and sends the surface water to be tested into the sample warehouse for detection. The sensor sends the collected data to the processor, which processes it to obtain the sediment content. After obtaining the data, the sensor排es the internal sample through the drain pipe to prepare for the next sampling. The processor outputs to the external device through 485.
2. Product Features
1. All-weather unattended, automatic measurement: runoff flow, runoff sediment content, total runoff, cumulative rainfall.
2. Solar power supply and dual power supply of the grid, stable and reliable. All-weather unattended, automatic measurement of data.
3. The pump is started and stopped on time, long-term and durable.
4. It has the function of online real-time monitoring, display of the dynamic process and curve of each measured parameter on the computer software, and the function of downloading historical data.
5. It can be freely set on the data management main control machine on site to set the sampling frequency and adjust the clock.
6、Good stability, sensor self-developed with high precision, strong stability, and strong anti-environmental interference ability.
Three, technical parameters
| Runoff flow measurement |
| Resolution | 0.1m3/h |
| Measurement accuracy | 1% to 5% of the range (depending on the accuracy of the pool) |
| Blind spot | 30~50cm |
| Sediment measurement |
| Measurement principle | Weighing method |
| Sampling frequency | 1~99 minutes |
| Measurement range | 0~500kg/m3; |
| Resolution | 0.01kg/m3 |
| Measurement accuracy | <10% |
| Rainfall measurement |
| Measurement range | 0mm~4mm/min (允許 through the maximum rain intensity of 8mm/min) |
| Resolution | 0.2mm |
| Measurement accuracy | ≤±3% (indoor artificial precipitation is based on the instrument's own drainage volume) |
| General indicators |
| Pump flow | 750GPH |
| Communication methods | RS485 |
| Work power | DC12V |
| Work environment | Temperature: 0(No freezing)~50℃; Humidity: <95%(No dew); |
| Work life | >1 year |
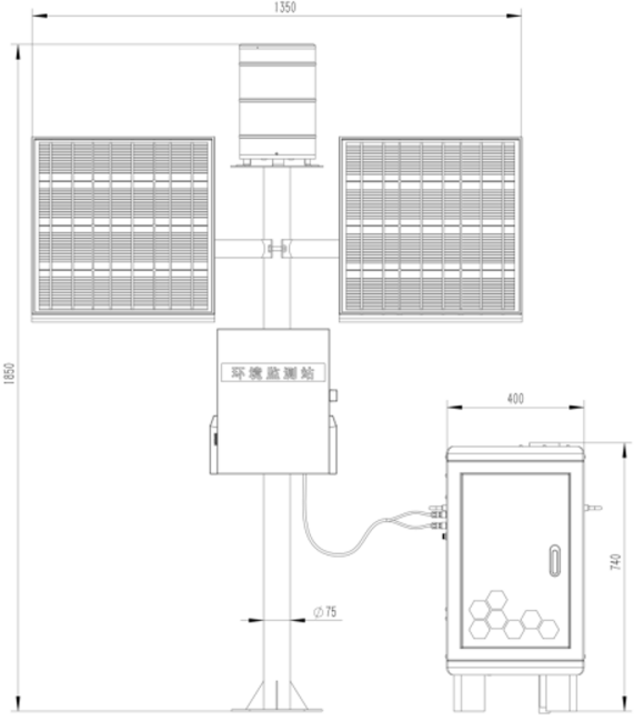
IV. Product dimensions and working diagram


5. Maintenance and Care
Before the first use, please loosen the transport fixing rod, otherwise the equipment will not work properly.
Before the first use or after a long period of non-use, please re-calibrate with clean water and zero adjustment.
Check the water tank regularly, if there is a large amount of sludge deposition or foreign objects, please clear them, and you can remove the drain valve and wash it clean.
Check the drain valve, sample bucket water inlet valve, sample bucket drain valve regularly to see if the water flow is unobstructed. If the water flow is weak or no water, you can cancel the control line on the drain valve and disassemble the drain valve for cleaning, and then re-install it.
Keep the interior of the equipment clean, and do not pile up items in the weighing part, and do not place items under the sample bucket.
When the temperature in the area where the equipment is located drops to zero degrees or lower, please drain the water inside the equipment to prevent ice from damaging the equipment.
When the sensor has been used for a long time and there is a measurement error, it can be calibrated and corrected by cooperating with the instrument. When the above methods for maintaining and caring for the sensor still cannot be calibrated and measured, it indicates that the sensor is damaged.
6. Introduction to the Cloud Platform
The Internet of Things Cloud Platform is a data receiving, processing, and analysis platform based on the Internet of Things communication technology. It supports the MQTT device communication protocol, supports the HJ212-2017 and HJ212-2005 environmental protection protocols, supports TCP/IP short link data forwarding, supports HTTP protocol data forwarding, supports real-time and historical data query and analysis, supports time series data waveform display, supports data aggregation, supports real-time video access, and supports device maps, etc.
Product address:
http://www.0757gl.com/en/shuituls/1659.html